Ropelv 23 Naust

Ropelv er et solid og praktisk naust med saltak og dobbel labankdør.
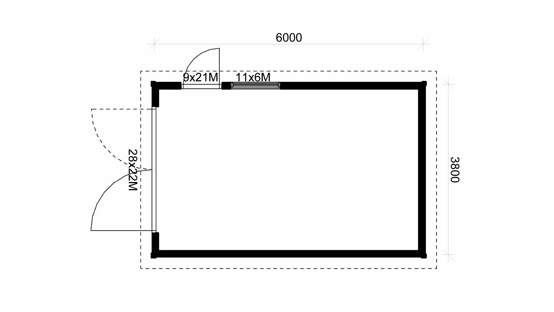
Plan og fasade
Nøkkeltall
Areal
Bruksarealet er hele arealet av den innvendige delen av hytten
22,8 m2
Lengde
Bruksarealet er hele arealet av den innvendige delen av hytten
6 m
Bredde
Bruksarealet er hele arealet av den innvendige delen av hytten
3,8 m
Mønehøyde
Bruksarealet er hele arealet av den innvendige delen av hytten
3,4 m
Takvinkel
Bruksarealet er hele arealet av den innvendige delen av hytten
22,5º
Portmål
Bruksarealet er hele arealet av den innvendige delen av hytten
2,8 x 2,2 m






